...
Къща в Марково 155 - изглед от двора
Изглед от локалния път към Къща 155 в Марково

Статус

Свободна

Общо РЗП
249,12 кв.м.
Общо ЗП
134,86 кв.м.
Първи Етаж
134,47 кв.м.
Втори Етаж
114,65 кв.м.
Бани
3
Спални
3
Парцел
506 кв.м.
Килер
6,21 кв.м.
Балкон
5,33 кв.м.
Гардеробна
4,62 кв.м.
Паркомясто
2 броя
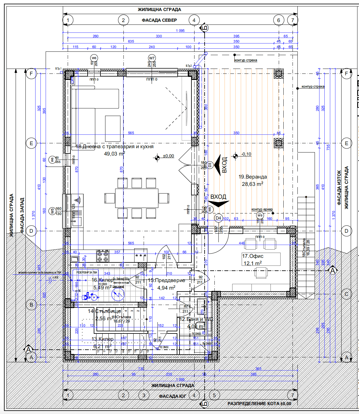
Марково къща 155 - етаж 1 разпределение

Къща в Марково – модерна двуетажна къща с две паркоместа в Комплекс Марково до Пловдив

Търсите къща в Марково или къща близо до Пловдив? Ето идеалното предложение – нова къща в Марково, част от Комплекса на Хаус Проект в Марково. Вече са построени и продадени 4 къщи, а тази е шестата, която изграждаме. Проектът ни предлага всичко необходимо за комфортен семеен живот – просторни помещения, две паркоместа, голяма веранда и балкон, само на минути от Пловдив.

Къщата е двуетажна с обща застроена площ от 249,12 м² и е проектирана с внимание към терена в Марково (община Родопи). 

Приземен етаж (кота ±0,00) – 134,86 м² Тук е сърцето на дома – огромна дневна с трапезария и кухня от 49,03 м², идеална за семейни събирания. Има отделен офис (12,10 м²) за работа от вкъщи, просторно преддверие (4,94 м²), два килера (6,21 м² и 5,49 м²), баня с WC (4,08 м²), стълбище (2,56 м²) и веранда от 28,63 м² с директен достъп отвън. Верандата е перфектна за лятни вечери и барбекю – истинска добавена стойност към всяка къща до Пловдив.

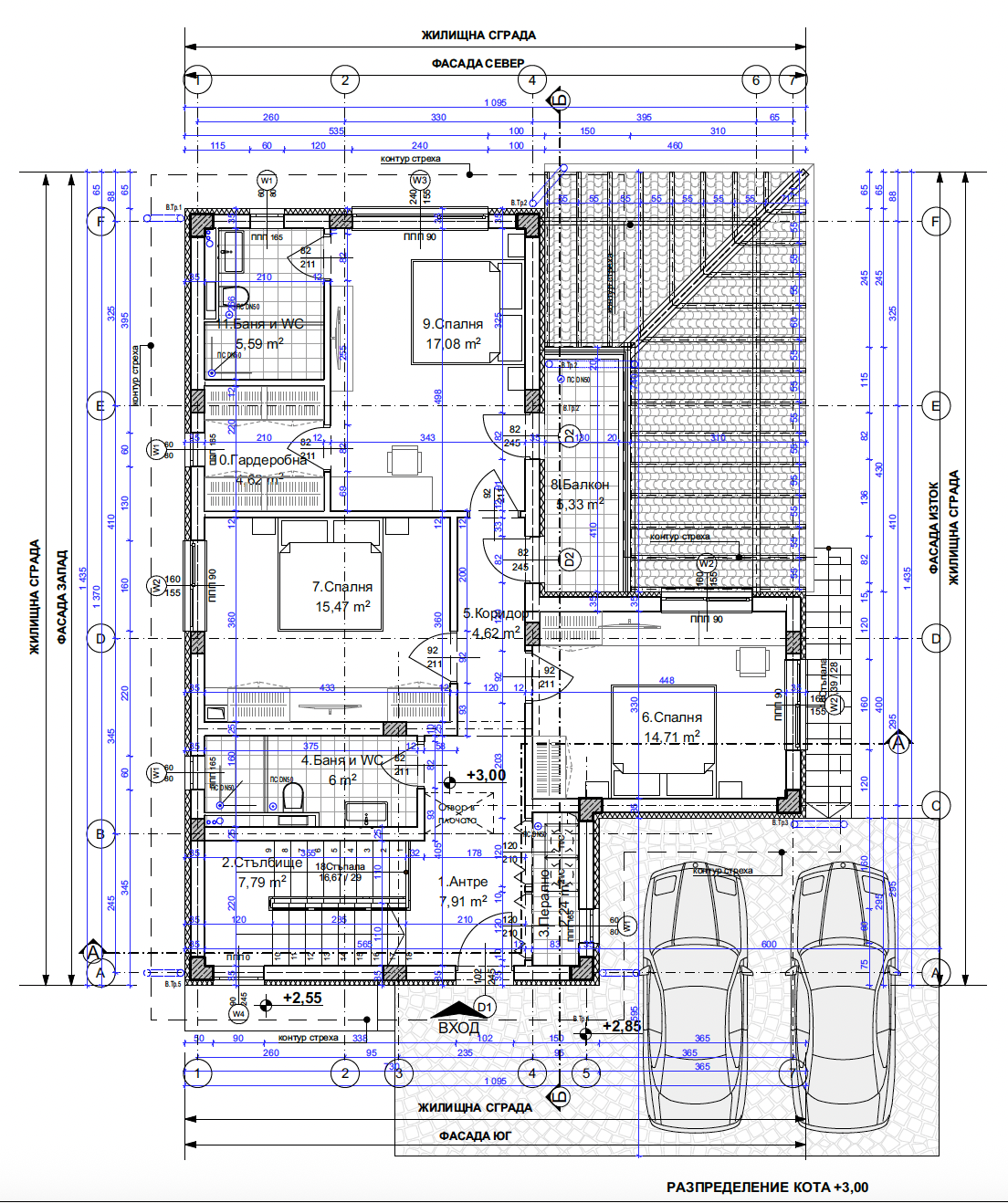
Горен етаж (кота +3,00) – 114,65 м² + 2 паркоместа Тук са разположени трите спални: 14,71 м², 15,47 м² и 17,08 м². Има удобен коридор (4,62 м²), антре (7,91 м²), две бани с WC (6 м² и 5,59 м²), гардеробна (4,62 м²), перално помещение (2,24 м²) и балкон (5,33 м²).

Тази къща Марково е създадена за хора, които търсят спокойствие извън града, но с бърз достъп до Пловдив. Съвременен дизайн, функционално разпределение, 3 спални, 3 бани, 2 паркоместа и големи открити пространства правят я перфектна за семейства. В Комплекс Марково ви предлагаме сигурност, съседи и обща инфраструктура.

Ако искате къщи в Марково с гарантирано качество – свържете се с нас. Разгледайте и останалите проекти – къща до Пловдив никога не е била по-достъпна и по-комфортна! Запазете си оглед или поръчайте индивидуален проект още днес.

Свържете се с нас

С удоволствие ще Ви предоставим повече информация за проекта и ще отговорим на всички въпроси, които имате.
Seraphinite AcceleratorOptimized by Seraphinite Accelerator
Turns on site high speed to be attractive for people and search engines.