...
Къща в Марково - еднофамилна 154
Къща в Марково - еднофамилна 154

Статус

Свободна

Общо РЗП
270,02 кв.м.
Общо ЗП
143,48 кв.м.
Първи Етаж
143,48 кв.м.
Втори Етаж
103,43 кв.м.
Гараж
23,11 кв.м.
Бани
3
Спални
3
Парцел
547 кв.м.
Килер
10,50 кв.м.
Балкон
4,20 кв.м.
Гардеробна
6,38 кв.м.
Паркомясто
1 брой
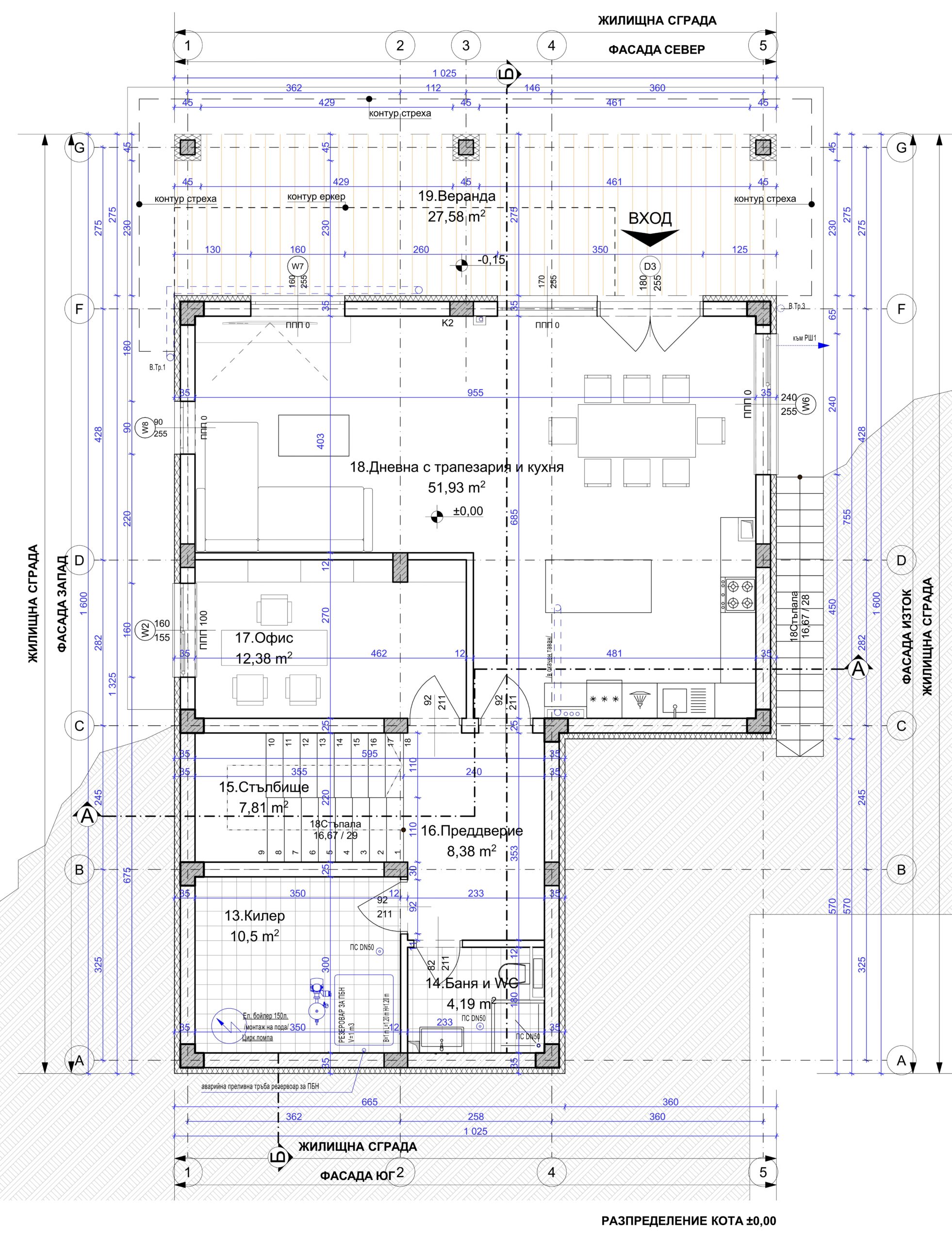
Къща в Марково 154 - разпределение на първи етаж
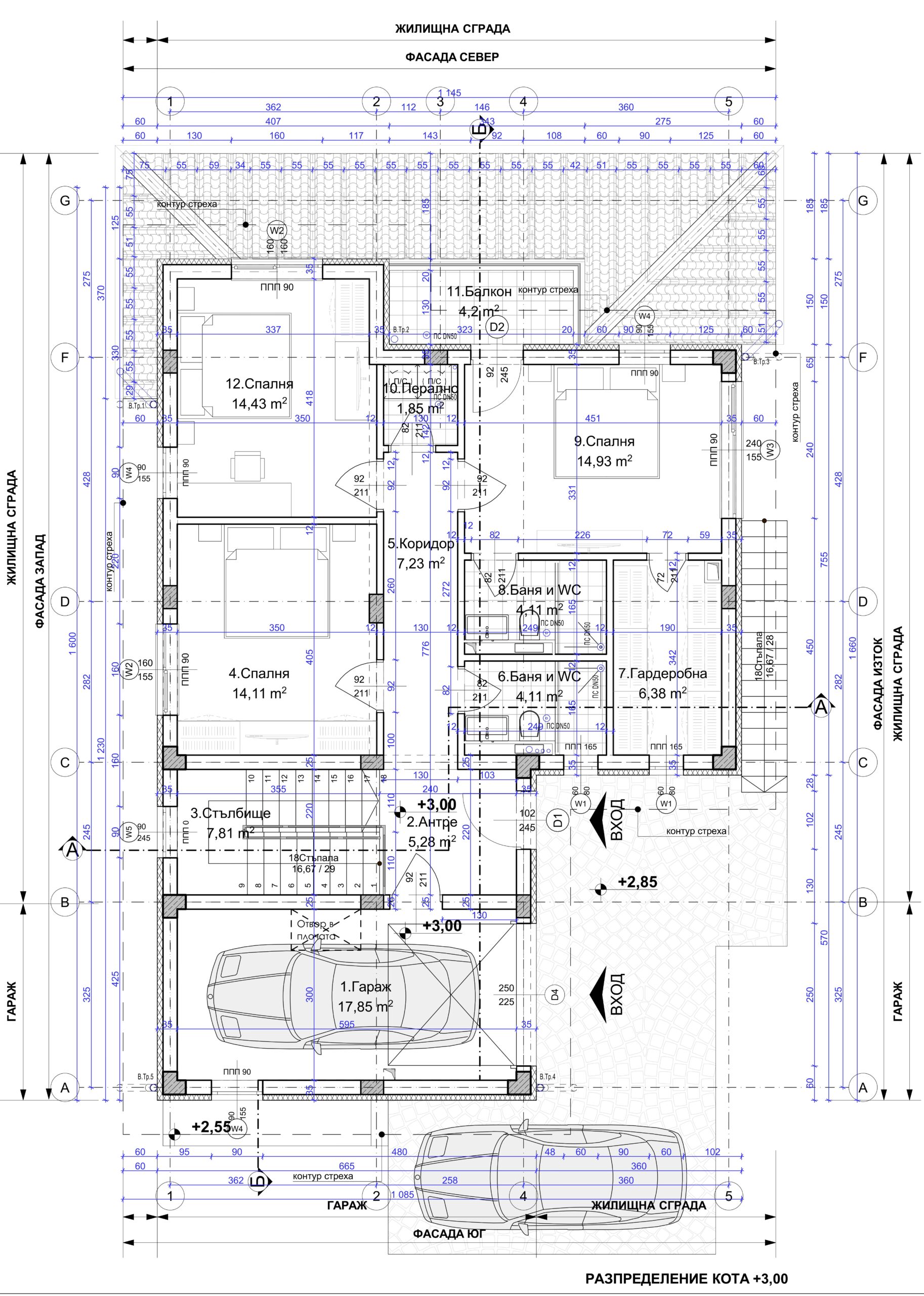
Къща в Марково 154 - разпределение на втори етаж

Къща в Марково – модерна двуетажна къща с гараж и паркомясто в Комплекс Марково до Пловдив

Търсите къща в Марково, близо до Пловдив? Ето идеалното предложение – нова къща в Марково, част от затворения Комплекс на Хаус Проект. В комплекса вече са построени и продадени 4 къщи, а тази е петата, която изграждаме. Проектът предлага всичко необходимо за комфортен семеен живот – просторни помещения, гараж, голяма веранда и балкон, само на минути от Пловдив.

Къщата е двуетажна с обща застроена площ над 240,02 м² и е проектирана с внимание към терена в Марково (община Родопи). 

Приземен етаж (кота ±0,00) – 143,48 м² Тук е сърцето на дома – огромна дневна с трапезария и кухня от 51,93 м², идеална за семейни събирания. Има отделен офис (12,38 м²) за работа от вкъщи, просторно преддверие (8,38 м²), килер (10,5 м²), баня с WC (4,19 м²), стълбище и веранда от 27,58 м² с директен достъп отвън. Верандата е перфектна за лятни вечери и барбекю – истинска добавена стойност към всяка къща до Пловдив.

Горен етаж (кота +3,00) – 126,54 м². Тук са разположени трите спални: 14,11 м², 14,93 м² и 14,43 м². Има удобен коридор (7,23 м²), антре (5,28 м²), две бани с WC (по 4,11 м²), гардеробна (6,38 м²), перално помещение (1,85 м²) и балкон (4,20 м²). Гаражът (23,11 м²) е с директен достъп – много удобно при наклона на терена в Марково.

Тази къща в Марково е създадена за хора, които търсят спокойствие извън града, но с бърз достъп до Пловдив. Съвременен дизайн, функционално разпределение, 3 спални, 3 бани, гараж, допълнително парко място и големи открити пространства правят я перфектна за семейства. 

Ако искате къща в Марково с гарантирано качество – свържете се с нас. Разгледайте и останалите проекти – къща до Пловдив никога не е била по-достъпна и по-комфортна! Запазете си оглед или поръчайте индивидуален проект още днес.

Свържете се с нас

С удоволствие ще Ви предоставим повече информация за проекта и ще отговорим на всички въпроси, които имате.
Seraphinite AcceleratorOptimized by Seraphinite Accelerator
Turns on site high speed to be attractive for people and search engines.