...
Къща 157 в Марково - визуализация
Къща 157 в марково-изглед от вътрешната-улица

Статус

Свободна

Общо РЗП
337,21 кв.м.
Общо ЗП
176,13 кв.м.
Първи Етаж
176,13 кв.м.
Втори Етаж
161,08 кв.м.
Бани
3
Спални
3
Парцел
504 кв.м.
Килер
8,74 кв.м.
Офис
13,79 кв.м.
Фитнес
23,22 кв.м.
Балкон
4,38 кв.м.
Гардеробна
5,10 кв.м.
Паркомясто
1 брой
Двоен гараж
32,76 кв.м
Къща 157 - етаж 1 в Марково
Къща 157 - етаж 2

Къщи в Марково – луксозна двуетажна къща с фитнес, офис и двоен гараж и парко място в Комплекс Марково близо до Пловдив

Ако търсите къщи в Марково или околностите на Пловдив, вижте този впечатляващ вариант – елегантна къща в комплекса на Хаус Проект в Марково. Четири къщи вече са завършени и продадени, а ние стартираме строителството на осмата. Проектирана от Хаус Проект ООД, тя предлага пълен комфорт за динамичен семеен живот – разкошни интериори, двоен гараж, просторна веранда, балкон и дори фитнес зала, всичко това на кратко разстояние от Пловдив.

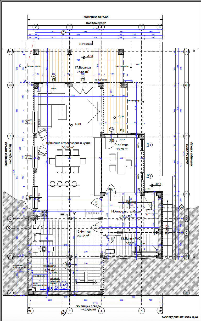
Къщата е двуетажна с обща разгъната застроена площ от 337,21 кв.м, адаптирана към релефа в Марково (община Родопи) и гледка към тепетата на Пловдив. 

Партерен етаж (±0,00) – 176,13 кв.м Центърът на къщата е внушителната дневна с трапезария и кухня от 55,57 м², перфектна за семейни моменти и гости. Допълнено е с фитнес (23,22 м²) за ежедневни тренировки, офис (13,79 м²) за домашна работа, антре и стълбище (13,49 м²), баня с WC (7,56 м²), килер (8,74 м²) и голяма веранда (27,55 м²) с външен излаз. Верандата е отлична за почивка на открито и социални събития – несъмнен акцент за всяка къща до Пловдив.

Втори етаж (+3,00) – 161,06 кв.м + двоен гараж Горният етаж включва три спални: 18,02 м², 16,09 м² и 16,72 м². Съпътстващи помещения: коридор (5,69 м²), антре и стълбище (21,92 м²), две бани с WC (4,40 м² и 5,36 м²), гардеробна (5,1 м²), перално помещение (2,25 м²) и балкон (4,38 м²). Двойният гараж (32,76 м²) предлага място за две коли с удобен достъп, както и едно допълнително обособено парко място.

Тази къща около Пловдив е за тези, които ценят тишината на селото с лесен достъп до града. Модерен стил, практична планировка, 3 спални, 3 бани, фитнес, двоен гараж и обилни открити зони я правят мечтан дом за семейства.

Желаете къщи Марково с безкомпромисно качество? Свържете се с нас. Открийте още проекти – къща в Марково сега е по-достъпна от всякога! 

Свържете се с нас

С удоволствие ще Ви предоставим повече информация за проекта и ще отговорим на всички въпроси, които имате.
Seraphinite AcceleratorOptimized by Seraphinite Accelerator
Turns on site high speed to be attractive for people and search engines.